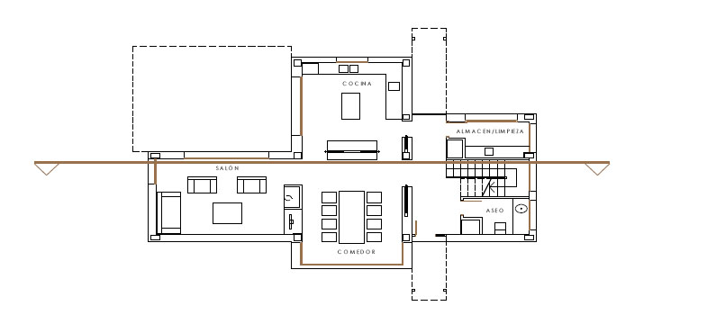
Hola a todos, hace unos días en la universidad nos dieron un modelo 3d de una casa. De ese modelo tenemos que hacer las secciones transversales, pero no sé cómo hacerlas.
Al intentar hacer un plano sección me dice demasiados objetos para intersectar.
Y al intentar unir me dice que hay que designar al menos 2 sólidos, superficies o regiones coplanares.
Os he subido el archivo CAD para que lo podáis ver.
A ver si alguien me puede ayudar. Muchas gracias de antemano.
-- IMÁGENES ADJUNTAS --
![]()

Citar