Resultados 1 al 7 de 7
  1. #1
    Usuario Senior
    Fecha de ingreso
    Dec 2008
    Mensajes
    42
    Gracias (Dadas)
    0
    Gracias (Recibidas)
    0

    Casa san pablo

    Hola señores del 3dpoder. Les muestro este trabajo, se trata de un encargo, es mi diseño y estoy precisamente con la maqueta digital.

    Espero les guste y comentarios ya saben.

    AutoCAD 2009.
    3d max 7.

    V-ray.
    Miniaturas adjuntas Miniaturas adjuntas Clic en la imagen para ver su versión completa. 
Nombre: C.jpg 
Visitas: 213 
Tamaño: 302.7 KB 
ID: 94698   Clic en la imagen para ver su versión completa. 
Nombre: D.jpg 
Visitas: 136 
Tamaño: 297.5 KB 
ID: 94699   Clic en la imagen para ver su versión completa. 
Nombre: FACHADAA.jpg 
Visitas: 114 
Tamaño: 103.3 KB 
ID: 94700   Clic en la imagen para ver su versión completa. 
Nombre: A.jpg 
Visitas: 121 
Tamaño: 177.8 KB 
ID: 94701  

    Clic en la imagen para ver su versión completa. 
Nombre: Sin título-1.jpg 
Visitas: 112 
Tamaño: 194.4 KB 
ID: 94702  

  2. #2
    Usuario Senior
    Fecha de ingreso
    Dec 2008
    Mensajes
    42
    Gracias (Dadas)
    0
    Gracias (Recibidas)
    0

    Casa san pablo

    Bueno señores veo que no publican nada, porque no comentan. Envío este avance.

    Clic en la imagen para ver su versión completa. 
Nombre: xxxsd3.jpg 
Visitas: 104 
Tamaño: 69.2 KB 
ID: 153036
    Última edición por 3dpoder; 08-11-2011 a las 05:39 Razón: Adjuntar las imágenes al foro

  3. #3
    3Designer
    Fecha de ingreso
    Jun 2008
    Mensajes
    139
    Gracias (Dadas)
    18
    Gracias (Recibidas)
    5

    Thumbs up Casa san pablo

    Oh, está quedando muy bien, pero molaría que la planta de la derecha y otra que es del mismo color las oscurecieses un poco el color, quedaría más realista, pero por lo demás, te está quedando genial.
    Ánimo sigue así.
    Barrita de nivel de 3d: [|Noob|--------|Yo|--------------------------------------|Pro|]

    Si alguien cree que me merezco una rallita mas en la barrita que me lo diga ^^Gracias

    Equipo:
    -Placa Base Asus M3A32-MVP Deluxe
    -Chipset AMD790FX
    -Procesador QuadCore AMD Phenom II, 3000 MHz (15 x 200)
    -Memoria RAM 8490 MB DDR2
    -Tarjeta gráfica NVIDIA GeForce GTX 295 (1972 MB) overclockeada
    -Disco nº1- ST3500320AS (465 GB)
    -Disco nº2- FUJITSU MHY2120BH (111 GB)

  4. #4
    Usuario Senior
    Fecha de ingreso
    Dec 2008
    Mensajes
    42
    Gracias (Dadas)
    0
    Gracias (Recibidas)
    0

    Casa san pablo

    Clic en la imagen para ver su versión completa. 
Nombre: xxxbzw2.jpg 
Visitas: 85 
Tamaño: 304.7 KB 
ID: 153035
    Última edición por 3dpoder; 08-11-2011 a las 05:36 Razón: Adjuntar las imágenes al foro

  5. #5
    standard DIN member
    Fecha de ingreso
    Apr 2005
    Mensajes
    1,163
    Gracias (Dadas)
    1
    Gracias (Recibidas)
    68

    Casa san pablo

    Si se puede opinar sobre el diseño de la casa, te diré que no me gusta que se entre desde la calle, y más de la entrada donde aparcas el coche directamente al salón comedor sin más preámbulo, y en cambio veo una gran pérdida de espacio en ese patio de servicios, que es desmesurado para la función que tiene. Fíjate que hay casi tanta superficie de cocina-servicios-patio de tendido como salón comedor. Es solo una opinión. Saludos.

  6. #6
    Usuario Senior
    Fecha de ingreso
    Dec 2008
    Mensajes
    42
    Gracias (Dadas)
    0
    Gracias (Recibidas)
    0

    Casa san pablo

    Clic en la imagen para ver su versión completa. 
Nombre: 76394448cm1.jpg 
Visitas: 120 
Tamaño: 316.8 KB 
ID: 153034

    Some render more.
    Última edición por 3dpoder; 08-11-2011 a las 05:36 Razón: Adjuntar las imágenes al foro

  7. #7
    Cool
    Fecha de ingreso
    Feb 2005
    Mensajes
    57
    Gracias (Dadas)
    0
    Gracias (Recibidas)
    1

    Casa san pablo

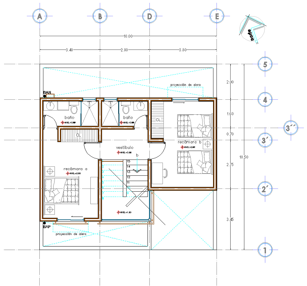
    El diseño exterior es lindo, aunque habrá que acotar que la orientación en su mayoría en al norte, por lo que será una casa muy, muy fría, en la planta baja igual lo entendería, pero el la planta alta tenias la posibilidad de aprovechar mejor la penetración solar.

    La comunicación que hay hacia el jardín solamente es por la cocina dado que los servicios están al otro lado creo que sería más conveniente dejar una comunicación directa del área social al jardín.

Temas similares

  1. Me presento, soy Pablo
    Por Pablo en el foro Quien eres tu - Aqui puedes presentarte
    Respuestas: 2
    Último mensaje: 28-08-2021, 11:23
  2. Hola soy Pablo
    Por locura699 en el foro Quien eres tu - Aqui puedes presentarte
    Respuestas: 1
    Último mensaje: 28-07-2013, 19:07
  3. Rocomesa v Pablo
    Por PCONCA en el foro Cortos de Animación
    Respuestas: 0
    Último mensaje: 01-04-2013, 22:10
  4. Me llamo Pablo
    Por pau navarro carrillo en el foro Quien eres tu - Aqui puedes presentarte
    Respuestas: 6
    Último mensaje: 06-11-2009, 23:07
  5. Pablo Denzel
    Por ilusiondigital en el foro Trabajos Finalizados
    Respuestas: 9
    Último mensaje: 16-12-2007, 03:01