Resultados 1 al 5 de 5
  1. #1
    Usuario Legendario
    Fecha de ingreso
    May 2005
    Mensajes
    3,096
    Gracias (Dadas)
    0
    Gracias (Recibidas)
    2

    Animationmaster Wip-la casa de mis sueños

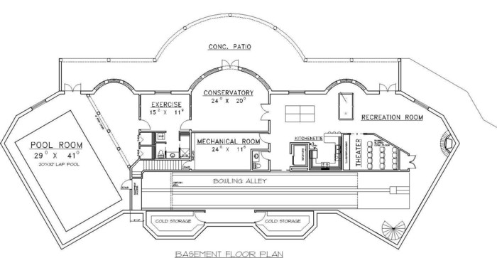
    Bueno pues en ello estoy, pero con a:m. De momento estoy trabajando en lo que sería la planta baja (incluye:piscina, bolera, etc).

    El problema principal es que me redondea cosas que no quiero que redone, y luego tengo que matarme bastante rato a trastear con las bias.

    Luego las paredes, en un principio iba hacer cuadrados (de ahí que se vea dos paredes lisas que faltarían conectar) pero luego pensé, para que hacer cubos, si con am puedo hacer un simple cuadrado y serviría? Así que, no se no sé, más que nada porque de empezar a hacerlo en el view top, no tiene complicación, pero luego cuando se extrudea y quieres añadir alguna cosa, los cps empiezan a fliparse solos arqueándose y es un curro del 15.

    Os adjunto una captura de lo que llevo hecho y el plano de la planta baja.

    Posdata: una cosa que me está llevando de cabeza, son las columnas de la piscina, ya que quería poner como un arco entre columna y columna y hacer así el techo, pero se resiste la puñetera construcción, con lo fácil que es.
    Miniaturas adjuntas Miniaturas adjuntas Clic en la imagen para ver su versión completa. 
Nombre: Mansion.jpg 
Visitas: 319 
Tamaño: 24.4 KB 
ID: 20004   Clic en la imagen para ver su versión completa. 
Nombre: firstBASE.jpg 
Visitas: 337 
Tamaño: 50.1 KB 
ID: 20005  

  2. #2
    Usuario Legendario
    Fecha de ingreso
    May 2005
    Mensajes
    3,096
    Gracias (Dadas)
    0
    Gracias (Recibidas)
    2

    Wip-la casita de mis sueños

    Columnas solucionadas (más o menos) está muy verde aún todo (y aún faltan 2 plantas más).
    Miniaturas adjuntas Miniaturas adjuntas Clic en la imagen para ver su versión completa. 
Nombre: Mansion2.jpg 
Visitas: 238 
Tamaño: 15.5 KB 
ID: 20008  

  3. #3
    Administrador
    Fecha de ingreso
    Apr 2002
    Mensajes
    20,969
    Gracias (Dadas)
    604
    Gracias (Recibidas)
    2248

    Wip-la casita de mis sueños

    Yo te recomiendo encarecidamente que aclares los conceptos de modelado en a:m. Intenté despejar algunas lagunas con el meiquin pato, pero sé que algunos conceptos básicos los di por hechos, ojalá tuviese más tiempo, haría un tutorial con esas cosas básicas que, si no se dominan pueden confundir a cualquiera. Te dejo un videotutorial en flash, de esos que te gustan, donde se revisa lo más básico. Espero que te sirva y puedas seguir adelante con tus proyectos. https://foro3d.com/showthread.php?p=165925#post165925.

    Ten paciencia con el inglés.

    Edito: allí donde se te arquea sin control la malla necesitas biselar, es muy sencillo.
    Última edición por SHAZAM; 22-09-2005 a las 19:24
    Obtén enseñanza tradicional en arte y cine. Los ordenadores solo son herramientas. Ellos no pueden tomar decisiones creativas, y solo pueden crear trabajos tan buenos como tus conocimientos y tu experiencia les permita.
    Victor Navone


    Ser "animador" es un regalo que te ganas y un honor que deben adjudicarte los otros.
    Chuck Jones


    La tecnología no hace las pelí*culas, la gente las hace. No eres un animador sólo porque puedas mover un objeto del punto A al punto B. Eres alguien quien le da vida a un personaje, que es algo que el software y la tecnología no puede dar.
    John Lasseter

  4. #4
    Usuario Legendario
    Fecha de ingreso
    May 2005
    Mensajes
    3,096
    Gracias (Dadas)
    0
    Gracias (Recibidas)
    2

    Wip-la casita de mis sueños

    Oh. Thenkiuses voy a por él. Respecto a lo de biselar, sencillo es, pero se pierde mucho tiempo. A mo ave el tutorial gracias.

    Posdata: Aix que bobo, me he dado cuenta nada más empezar a ver el tutorial que empecé haciéndolo bien y luego no sé por qué no seguí con los cps para controlar las curvas, la leche (tiene delito darme cuenta en el tutorial y no en el modelo que llevo mirándolo todo el rato).
    Última edición por devnul; 22-09-2005 a las 19:42

  5. #5
    Administrador
    Fecha de ingreso
    Apr 2002
    Mensajes
    20,969
    Gracias (Dadas)
    604
    Gracias (Recibidas)
    2248

    Wip-la casita de mis sueños

    Posdata: Aix que bobo, me he dado cuenta nada más empezar a ver el tutorial que empecé haciéndolo bien y luego no sé por qué no seguí con los cps para controlar las curvas, la leche (tiene delito darme cuenta en el tutorial y no en el modelo que llevo mirándolo todo el rato).
    Sabía que te serviría.

    Míralo varias veces, que no quede ningún tema sin aclarar.
    Obtén enseñanza tradicional en arte y cine. Los ordenadores solo son herramientas. Ellos no pueden tomar decisiones creativas, y solo pueden crear trabajos tan buenos como tus conocimientos y tu experiencia les permita.
    Victor Navone


    Ser "animador" es un regalo que te ganas y un honor que deben adjudicarte los otros.
    Chuck Jones


    La tecnología no hace las pelí*culas, la gente las hace. No eres un animador sólo porque puedas mover un objeto del punto A al punto B. Eres alguien quien le da vida a un personaje, que es algo que el software y la tecnología no puede dar.
    John Lasseter

Temas similares

  1. Maya Sueños
    Por pcanime en el foro Trabajos Finalizados
    Respuestas: 8
    Último mensaje: 29-01-2015, 18:33
  2. La PC de mis sueños
    Por 3D_Cubano en el foro Hardware
    Respuestas: 5
    Último mensaje: 07-05-2010, 23:53
  3. Myvirtualhome 2 0-la casa de tus sueños con todo lujo
    Por 3dpoder en el foro Programas de Diseño gráfico y CAD
    Respuestas: 0
    Último mensaje: 01-08-2009, 00:00
  4. Sueños
    Por StormRider en el foro Todo menos Infografía
    Respuestas: 70
    Último mensaje: 09-05-2008, 15:44
  5. El equipo de tus sueños
    Por jack esparrago en el foro Hardware
    Respuestas: 27
    Último mensaje: 13-09-2007, 04:54