O también llamado showroom, así a lo col. Es un trabajo que ya entregue hace poco para la escuela, no tiene muchos detalles por lo que igual es difícil criticarlas, pero cualquier detalle de iluminación, materiales o mejoras serán agradecidas.
Una mejora clara hubiera sido meter muebles, que además con buenas texturas suman realismo a la escena, pero la falta de tiempo me mato.
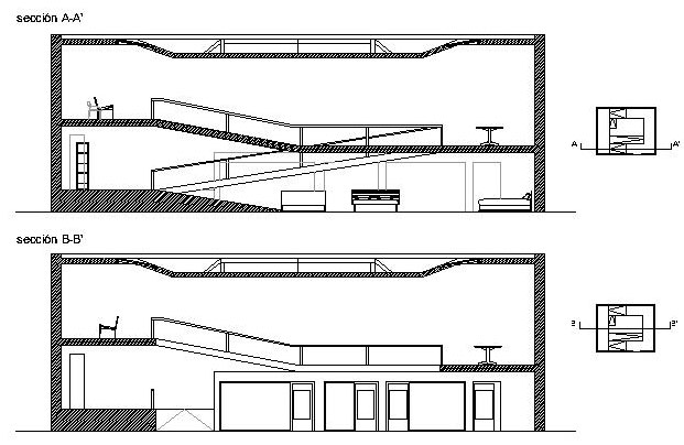
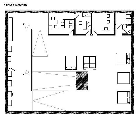
Bueno y por comentar algo más, decir que lo que el volumen que nos daban era ese, fijo, vacío, mi intención fue crear un espacio único, continuo y fluido, tratándose de una exposición/tienda de muebles, sin trabas visuales ni físicas prácticamente, con rampas que facilitan el tener la vista constantemente mirando a los muebles y demás.
Datos.
Modelado en AutoCAD, Vray con IRR+photons para render. Un saludo.
-- IMÁGENES ADJUNTAS --
![]()

Citar