Resultados 1 al 5 de 5

Little house

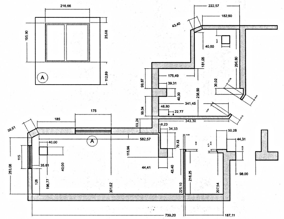
  1. #1
    Fecha de ingreso
    Jan 2009
    Mensajes
    354

    Little house =

    Ayer he descargado un libro sobre arquitectura en 3ds Max y he decidido a hacer una casa.

    Aquí está el comienzo.

    A ver en cuantos días puedo acabar la casa.

    -- IMÁGENES ADJUNTAS --

    Miniaturas adjuntas Miniaturas adjuntas Clic en la imagen para ver su versión completa. 

Nombre: Plan.jpg 
Visitas: 950 
Tamaño: 344.8 KB 
ID: 95403   Clic en la imagen para ver su versión completa. 

Nombre: walls.jpg 
Visitas: 290 
Tamaño: 229.1 KB 
ID: 95404  

  2. #2
    Fecha de ingreso
    Jan 2009
    Mensajes
    354

    Little house =

    uploading.

    -- IMÁGENES ADJUNTAS --
    Miniaturas adjuntas Miniaturas adjuntas Clic en la imagen para ver su versión completa. 

Nombre: 1.jpg 
Visitas: 350 
Tamaño: 235.1 KB 
ID: 95405  

  3. #3
    Fecha de ingreso
    Jan 2009
    Mensajes
    155

    Little house =

    Harás un presupuesto? Recuerda que estamos en crisis.

  4. #4
    Fecha de ingreso
    Dec 2008
    Mensajes
    52

    Little house =

    Dibujando primero las lines de ejes de muro en planta y luego utilizando la herramienta wall y pik line, se hace muy rápido, después agregar ventanas, puertas y escaleras es simple. Yo cuando término de hacer los muros los convierto a editpoly así (yo que uso el max muy básicamente) puedo hacer fácil los zócalos, molduras y terminaciones, los techos solo haciendo geometrías y editándola, si encontrarás o sabes de una herramienta que haga techos, comenta algo, gracias.
    www.render-creativision.blogspot.com.

  5. #5
    Fecha de ingreso
    Jan 2009
    Mensajes
    354

    Little house =

    Harás un presupuesto? Recuerda que estamos en crisis.
    Lo que me faltaba un presupuesto ni de coña yo hago mi trabajo o sea diseño 3d y ya está lo demás es cosa de arquitecto o yo que sé.
    Dibujando primero las lines de ejes de muro en planta y luego utilizando la herramienta wall y pik line, se hace muy rápido, después agregar ventanas, puertas y escaleras es simple. Yo cuando término de hacer los muros los convierto a editpoly así (yo que uso el max muy básicamente) puedo hacer fácil los zócalos, molduras y terminaciones, los techos solo haciendo geometrías y editándola, si encontrarás o sabes de una herramienta que haga techos, comenta algo, gracias.
    www.render-creativision.blogspot.com.
    Jolín pues la verdad es que, sí que es más fácil hacer paredes con la herramienta esa Walls ya me olvidaba de ella.

    He mirado tus trabajos en la página que guapos .

    -- IMÁGENES ADJUNTAS --
    Miniaturas adjuntas Miniaturas adjuntas Clic en la imagen para ver su versión completa. 

Nombre: 2.jpg 
Visitas: 290 
Tamaño: 248.1 KB 
ID: 95407  
    Última edición por -Jack3DM-; 20-02-2009 a las 17:13

Temas similares

  1. House k
    Por acortes en el foro Trabajos Finalizados
    Respuestas: 4
    : 04-03-2011, 13:12
  2. House 01
    Por alvaroars en el foro Trabajos Finalizados
    Respuestas: 16
    : 08-12-2009, 04:51
  3. Our house
    Por Tariboh en el foro Trabajos Finalizados
    Respuestas: 2
    : 19-08-2008, 17:06
  4. Our house
    Por Tariboh en el foro Trabajos Finalizados
    Respuestas: 1
    : 03-08-2008, 00:37
  5. The house
    Por nextea3 en el foro Trabajos en Proceso
    Respuestas: 4
    : 07-09-2007, 12:28

Etiquetas para este tema