Bueno, hola a todos/as. Espero que este reto pueda ser tomado por todo aquel al que le interese ya que hay bastante gente en este foro que se dedica a la infoarquitectura últimamente ando bastante desmotivado en cuanto a empezar nuevos proyectos para mejorar mis conocimientos e ir cogiendo experiencia para el futuro (e inestable) mundo laboral en este campo, ya que en el foro no hay concursos dirigidos a estos menesteres desde hace mucho tiempo me aconsejaron transformar mis ansias en un reto.
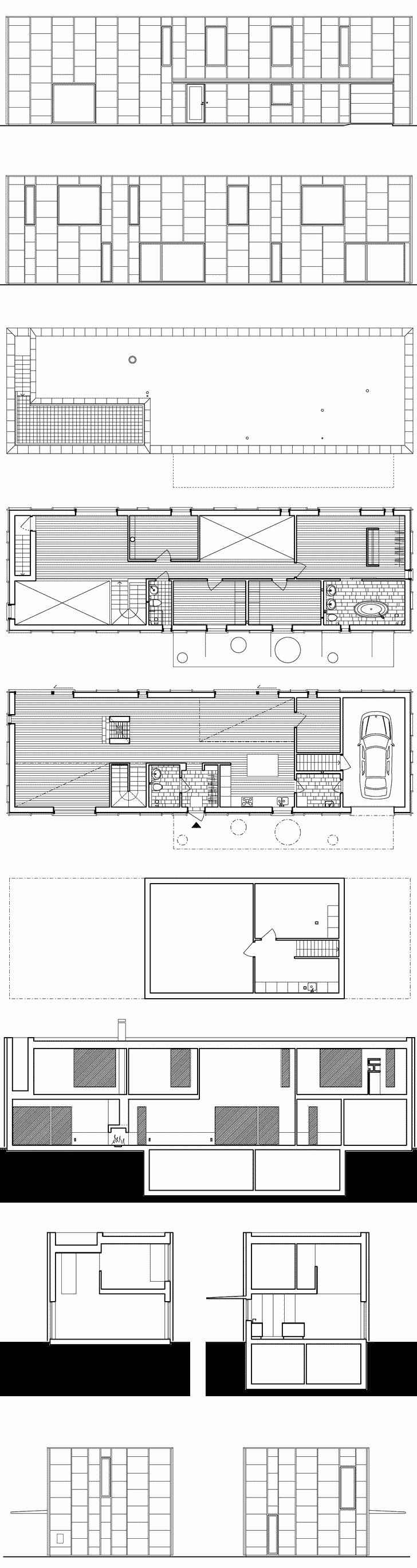
He aquí la propuesta, ojeando varias revistas y blogs de arquitectura he encontrado buenas fuentes para poder ofrecer un reto, en este caso seria el modelado y postproducción del exterior de una casa minimalista ya existente en Estocolmo (para que no haya dudas sobre mis intenciones), denominada house k, podréis encontrar datos e imágenes sobre ella en internet, aquí cuelgo los datos básicos para comenzar el reto, imágenes y planos de planta que están en la red, se podría usar cualquier swoft, pongo el prefijo del 3ds Max porque yo usare max.
La idea es sacar 2 vistas generales mínimo de la casa, en un tiempo determinado que acordaremos todos los que aceptemos el reto, el resultado final de este reto será una votación de los usuarios del foro que así lo deseen y de los participantes para elegir el proyecto mejor concretado, por el camino está experiencia nos servirá para comentar, comparar y aprender de lo que hemos hecho, modelado, texturizado, iluminación y prostproducción.
Todo aquel que este interesado que se apunte aquí, como la gente está de vacatas en principio no hay plazo para apuntarse.
Posdata: el siguiente reto que me parece muy interesante seria modelar el interior de esta casa ya que también existe información en internet sobre ello y mostrar varios interiores.
-- IMÁGENES ADJUNTAS --
https://foro3d.com/attachment.php?attachmentid=141398
https://foro3d.com/attachment.php?attachmentid=141399
https://foro3d.com/attachment.php?attachmentid=141400
