1 Archivos adjunto(s)
	
	
		Solución a las secciones modelo subido
	
	
		Hola a todos, hace unos días en la universidad nos dieron un modelo 3d de una casa. De ese modelo tenemos que hacer las secciones transversales, pero no sé cómo hacerlas.
Al intentar hacer un plano sección me dice demasiados objetos para intersectar.
Y al intentar unir me dice que hay que designar al menos 2 sólidos, superficies o regiones coplanares.
Os he subido el archivo CAD para que lo podáis ver.
A ver si alguien me puede ayudar. Muchas gracias de antemano.
-- IMÁGENES ADJUNTAS --
https://foro3d.com/attachment.php?attachmentid=107721
	 
	
	
	
		Solución a las secciones modelo subido
	
	
		Dime por dónde las quieres y yo te las hago en 2 segundos con AutoCAD architecture, y dime en que versión de AutoCAD lo necesitas.
	 
	
	
		1 Archivos adjunto(s)
	
	
		Solución a las secciones modelo subido
	
	
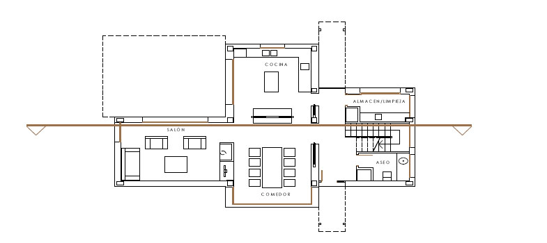
		Hola, pues mira serían 3. Dos horizontales por los huecos de las ventanas de cada planta (creo que están a 1.5 de altura), y otra transversal cortando las escaleras cómo se aprecia en la imagen.
Archivo adjunto 154575
Muchas gracias de antemano por la ayuda 3dvini. Un saludo.
-- IMÁGENES ADJUNTAS --
https://foro3d.com/attachment.php?attachmentid=154575
	 
	
	
		1 Archivos adjunto(s)
	
	
		Solución a las secciones modelo subido
	
	
		Por horizontales entiendo que quieres las plantas? Dime la versión de AutoCAD que necesitas si no lo vas apodre abrir. Por cierto, las secciones no las quieres en 3d ¿no?
-- IMÁGENES ADJUNTAS --
https://foro3d.com/attachment.php?attachmentid=107826
	 
	
	
		2 Archivos adjunto(s)
	
	
		Solución a las secciones modelo subido
	
	
		Ah sí, perdona, utilizo AutoCAD 2009 y 2010, y sí, todas las secciones serían en 3d. Mira, tenemos que hacer algo como lo que te adjunto, el modelo hacemos en Cad, y luego le metemos muebles con 3dsMax y hacemos varios renders de las secciones 3d.
Mira los ejemplos 3dvini.
-- IMÁGENES ADJUNTAS --
https://foro3d.com/attachment.php?attachmentid=118263
https://foro3d.com/attachment.php?attachmentid=118264
	 
	
	
	
		Solución a las secciones modelo subido
	
	
		Si lo quieres en 3d la cosa cambia, con el archivo que tienes, en AutoCAD no lo vas a poder hacer porque son mallas policara y no sólidos.
	 
	
	
	
		Solución a las secciones modelo subido
	
	
		Silo pasas a max las mallas policara de AutoCAD se te convertirán en Mesh, y entonces si le puedes hacer un slice o usar booleanas.
	 
	
	
	
		Solución a las secciones modelo subido
	
	
		Y que debería modificar entonces? No hay manera de hacerlo en Cad? En 3dsMax probé añadiendo los clipping planes estos en opciones de cámara, pero eso secciona paralelamente a la cámara, y una vista como las que te he enlazado arriba no podría conseguir.
Alguna sugerencia?
	 
	
	
	
		Solución a las secciones modelo subido
	
	
		Vaya, en 3dsmax solo manejo texturas y renderizado. Pero podría intentar algo a ver qué saco. Edito:, me lo has solucionado.
Ya lo he conseguido hacer con slices.
Qué grande es la tecla f1 (cuando sabes que buscar claro).
Mil gracias amigo.
	 
	
	
	
		Solución a las secciones modelo subido