-
5 Archivos adjunto(s)
Casa san pablo
-
1 Archivos adjunto(s)
Casa san pablo
Bueno señores veo que no publican nada, porque no comentan. Envío este avance.
Archivo adjunto 153036
-- IMÁGENES ADJUNTAS --
https://foro3d.com/attachment.php?attachmentid=153036
-
Casa san pablo
Oh, está quedando muy bien, pero molaría que la planta de la derecha y otra que es del mismo color las oscurecieses un poco el color, quedaría más realista, pero por lo demás, te está quedando genial.
Ánimo sigue así.
-
1 Archivos adjunto(s)
Casa san pablo
-
Casa san pablo
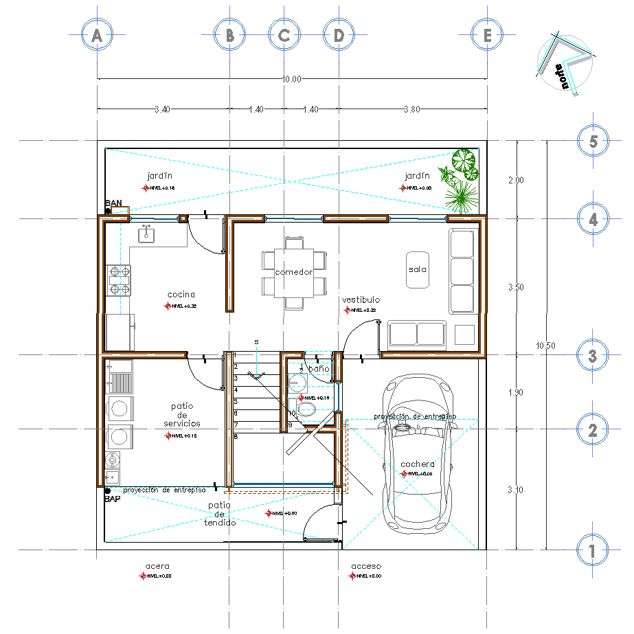
Si se puede opinar sobre el diseño de la casa, te diré que no me gusta que se entre desde la calle, y más de la entrada donde aparcas el coche directamente al salón comedor sin más preámbulo, y en cambio veo una gran pérdida de espacio en ese patio de servicios, que es desmesurado para la función que tiene. Fíjate que hay casi tanta superficie de cocina-servicios-patio de tendido como salón comedor. Es solo una opinión. Saludos.
-
1 Archivos adjunto(s)
Casa san pablo
-
Casa san pablo
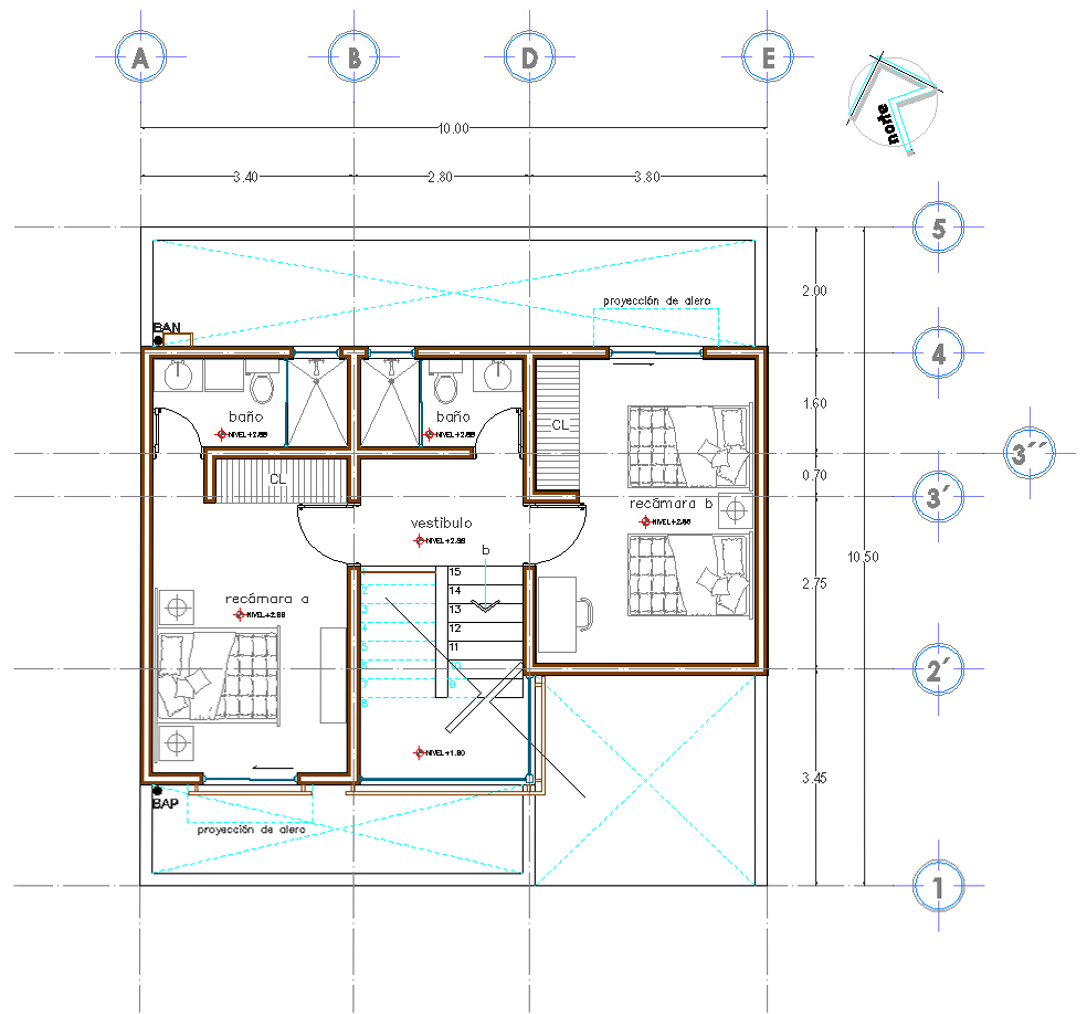
El diseño exterior es lindo, aunque habrá que acotar que la orientación en su mayoría en al norte, por lo que será una casa muy, muy fría, en la planta baja igual lo entendería, pero el la planta alta tenias la posibilidad de aprovechar mejor la penetración solar.
La comunicación que hay hacia el jardín solamente es por la cocina dado que los servicios están al otro lado creo que sería más conveniente dejar una comunicación directa del área social al jardín.