2 Archivos adjunto(s)
Wip-la casa de mis sueños
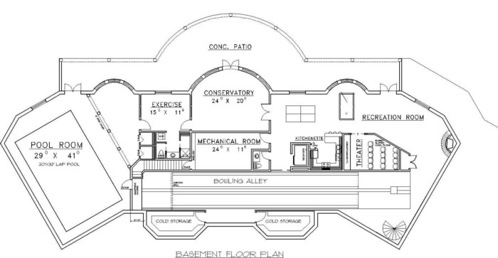
Bueno pues en ello estoy, pero con a:m. De momento estoy trabajando en lo que sería la planta baja (incluye:piscina, bolera, etc).
El problema principal es que me redondea cosas que no quiero que redone, y luego tengo que matarme bastante rato a trastear con las bias.
Luego las paredes, en un principio iba hacer cuadrados (de ahí que se vea dos paredes lisas que faltarían conectar) pero luego pensé, para que hacer cubos, si con am puedo hacer un simple cuadrado y serviría? Así que, no se no sé, más que nada porque de empezar a hacerlo en el view top, no tiene complicación, pero luego cuando se extrudea y quieres añadir alguna cosa, los cps empiezan a fliparse solos arqueándose y es un curro del 15.
Os adjunto una captura de lo que llevo hecho y el plano de la planta baja.
Posdata: una cosa que me está llevando de cabeza, son las columnas de la piscina, ya que quería poner como un arco entre columna y columna y hacer así el techo, pero se resiste la puñetera construcción, con lo fácil que es.
-- IMÁGENES ADJUNTAS --
https://foro3d.com/attachment.php?attachmentid=20004
https://foro3d.com/attachment.php?attachmentid=20005
1 Archivos adjunto(s)
Wip-la casita de mis sueños
Columnas solucionadas (más o menos) está muy verde aún todo (y aún faltan 2 plantas más).
-- IMÁGENES ADJUNTAS --
https://foro3d.com/attachment.php?attachmentid=20008
Wip-la casita de mis sueños
Yo te recomiendo encarecidamente que aclares los conceptos de modelado en a:m. Intenté despejar algunas lagunas con el meiquin pato, pero sé que algunos conceptos básicos los di por hechos, ojalá tuviese más tiempo, haría un tutorial con esas cosas básicas que, si no se dominan pueden confundir a cualquiera. Te dejo un videotutorial en flash, de esos que te gustan, donde se revisa lo más básico. Espero que te sirva y puedas seguir adelante con tus proyectos. https://www.foro3d.com/showthread.php?p=165925#post165925.
Ten paciencia con el inglés.
Edito: allí donde se te arquea sin control la malla necesitas biselar, es muy sencillo.
Wip-la casita de mis sueños
Oh. Thenkiuses voy a por él. Respecto a lo de biselar, sencillo es, pero se pierde mucho tiempo. A mo ave el tutorial gracias.
Posdata: Aix que bobo, me he dado cuenta nada más empezar a ver el tutorial que empecé haciéndolo bien y luego no sé por qué no seguí con los cps para controlar las curvas, la leche (tiene delito darme cuenta en el tutorial y no en el modelo que llevo mirándolo todo el rato).
Wip-la casita de mis sueños
Cita:
Posdata: Aix que bobo, me he dado cuenta nada más empezar a ver el tutorial que empecé haciéndolo bien y luego no sé por qué no seguí con los cps para controlar las curvas, la leche (tiene delito darme cuenta en el tutorial y no en el modelo que llevo mirándolo todo el rato).
Sabía que te serviría.
Míralo varias veces, que no quede ningún tema sin aclarar.