-
5 Archivos adjunto(s)
Interiores espacio exposición de muebles
O también llamado showroom, así a lo col. Es un trabajo que ya entregue hace poco para la escuela, no tiene muchos detalles por lo que igual es difícil criticarlas, pero cualquier detalle de iluminación, materiales o mejoras serán agradecidas.
Una mejora clara hubiera sido meter muebles, que además con buenas texturas suman realismo a la escena, pero la falta de tiempo me mato.
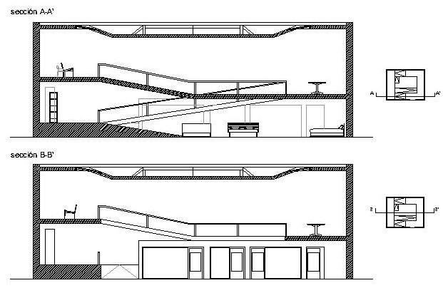
Bueno y por comentar algo más, decir que lo que el volumen que nos daban era ese, fijo, vacío, mi intención fue crear un espacio único, continuo y fluido, tratándose de una exposición/tienda de muebles, sin trabas visuales ni físicas prácticamente, con rampas que facilitan el tener la vista constantemente mirando a los muebles y demás.
Datos.
Modelado en AutoCAD, Vray con IRR+photons para render. Un saludo.
-- IMÁGENES ADJUNTAS --
https://foro3d.com/attachment.php?attachmentid=16127
https://foro3d.com/attachment.php?attachmentid=16128
https://foro3d.com/attachment.php?attachmentid=16129
https://foro3d.com/attachment.php?attachmentid=16130
https://foro3d.com/attachment.php?attachmentid=16131
-
Interiores espacio exposición de muebles
El espacio me gusta. Parece bastante diáfano, así que, imagino cumpliste el objetivo a nivel técnico, hay muchos fallos en las esquinas (sobre todo), donde aparecen un montón de artefactos, probablemente por una mala configuración del mapa de irradiancia (o del de fotones). Saludos.
-
1 Archivos adjunto(s)
Interiores espacio exposición de muebles
Si, al profesor parece que también le gusto el espacio. Está claro, las esquinas están muy guarras, intentaré estos días mejorar los seteos a ver, ya los colgaré aquí para ver que hago mal. Gracias.
Edito: acabo de tirar un render con min -3 max -3 y ha quedado mejor que los de arriba, que tenían -3 y 0, que cosas.
-- IMÁGENES ADJUNTAS --
https://foro3d.com/attachment.php?attachmentid=16139
-
Interiores espacio exposición de muebles
Un poco soso, pero se ve bien el espacio, tal vez algo que le diera contraste quedaría muy bien. El cielo no pega tampoco, quedaría más claro a mi parecer debido a tu paleta de colores.
-
Interiores espacio exposición de muebles
Estoy de acuerdo con rodmijo, pero si es para una exposición de muebles toda la zona de las rampas la tienes inútil con lo cual pierdes espacio, ahora si esto es la entrada de la exposición, siempre puedes poner estantes. Me gusta, esta original.
-
Interiores espacio exposición de muebles
Gracias artistas. La puerta de acceso es ese hueco que se ve en la primera imagen, las rampas lógicamente son los elementos que nos llevan de un espacio de exposición, con un tipo de muebles, a otro, con otro tipo, aunque también pensé en un momento que podrían tener plataformas horizontales con sillas y muebles, dando más continuidad a todo.
Sobre los Photons, claro, estoy muy verde con Vray y ya se ve, porque tenía que subir bastante más los rebotes y fotones para utilizar min -3 max 0. Un saludo.
-
Interiores espacio exposición de muebles
Creo que has pensado mucho en los minusválidos, pero esas rampas tienen unas pendientes que matan.
-
Interiores espacio exposición de muebles
Bueno. Si, tienes razón, según de dónde se mire, la normativa dice que la inclinación máxima de minusválidos tiene que ser del 8%, estas si no recuerdo mal tienen un 12%, no la cumplen, bien, y el debate estaría interesante, en serio, pero no creo que tenga cavida aquí, aunque supongo que, tu critiva viene ligada a mi explicación del espacio y arquitectura en general.
Si estudias arquitectura sabrás que es muy incómodo la normativa sobre minusválidos, no digo que no haya que, cumplirla, pero te limitan mogollón, en mí no_muy_razonable_defensa diré que no se trata de un edificio público de gran trafico, como podría ser una biblioteca, ayuntamiento, teatro, etc y que el 80% de los alumnos(espero que nadie lo lea) metido ascensores y escaleras, que en su mayor parte privaban el acceso a más de un sitio, mientras que aquí ese 4% más de rampa no supone demasiado. Un saludo.
-
Interiores espacio exposición de muebles
Creo que te inspiraste en unos de los edificios de Frank Lloyd wri.
-
Interiores espacio exposición de muebles
Creo que es el museo de ny.
-
Interiores espacio exposición de muebles
No te preocupes en cuanto a tu diseño se mira bien, pero para poder diseñar bien siempre hay que seguir las normas y leyes sino no eres un diseñador.
-
Interiores espacio exposición de muebles
Que va, es de cosecha propia, si es que eso existe. Puede que te refieras a wrigth por el recorrido continuo, no sé, la idea generadora fue esa, continuidad visual y espacial, sin perder el tener espacios con ambientes diferentes, ya que había que meter diferentes tipos de muebles, y yo quise de alguna forma diferenciar estos espacios mediante alturas y disminuicion de la iluminación(en la realidad) según bajamos de altura.
Me basara o no en el pequeño maestro, es uno de mis preferidos.
Bueno, eso de que siempre hay que seguir las normas, te podría citar cantidad de casos donde se las altan a la torera, precisamente porque son muy restrictivas, y en muchos casos lo hacen arquitectos de reconocido prestigio, ahora, si las sigues y encima logras un buen espacio y diseño, perfecto.
-
Interiores espacio exposición de muebles
Tienes razón, aunque yo soy fan de le cobrusier el padre del funcionalismo, para mí no hay mejor diseño que uno que sea funcional.
Como dice el dicho la función hace la forma.
Yo digo que no es malo romper los esquemas, pero si sigues todo al pide de la letra no habrá muro que te detenga.
Yo te digo por experiencia que muchos proyectos se han detenido por cosas tan pequeñas que hasta te darían risa.
El punto es que nunca hay que menos preciar un buen diseño.
Espero que hayas sacado muy buena nota con tu profesor.
-
Interiores espacio exposición de muebles
Bueno, discrep tus gustos, ya que, aunque LC es la caña, no soy tan extremista como el, no llego a pensar en la casa como una máquina, equiparando la arquitectura a un automóvil, tostadora o barco, pero está claro que fue un genio, un monstruo.
En lo que dices de la sreglas bueno, puedes seguirlas o no, pero los grandes avances y estilos se han dado muchas veces por romperlas, por ir contracorriente, pero vaya, que nos estamos yendo cosa mala del tema y nos van a bannear la calle ha muerto?
-
Interiores espacio exposición de muebles
Señores, creo que el tema principal de este foro, son las técnicas 3d? He liedo muchas páginas de aquí y todas son de respetar en cuanto a trabajos, y críticas también, y casi siempre se desvían del tema, para discutir arquitectura hay foros no creen.
Yo creo en mí humilde opinión que la técnica está bien con los fallos ya mensionados, en relación al diseño, después de casi 20 años de arquitecto, pocos maestros ha logrado descubrir el hilo negro, lo demás son adaptaciones a una u otra necesidad, creo yo, y si ves un edidicio parecido a otro, es porque los dos trataron muy bien el tema, la bella arte de la arquitectura.
Posdata: la norma en la CD de México a cuanto a rampas de minusválidos por ejemplo, es del 6%, y creo que solo las clinicas y hospitales las respetan.
-
Interiores espacio exposición de muebles
Cita:
Para discutir arquitectura hay foros no creen.
Pues no, no creo ¿por qué cortar la conversación entre dos interesados en arquitectura, cuando intercambian puntos de vista. Primero, porque aprenden ellos. Segundo, porque aprendemos todos los demás.
Si todas las discusiones son así de constructivas, bienvenidas sean.
-
Interiores espacio exposición de muebles
Tonneti respeto tu opinión por que yo respeto a las personas con principios. Yo solo quería que vieras un diferente punto de vista, porque yo también como cualquier otro defenderia mi trabajo a capa y espada (literalmente).
Deseo que tengas un gran porvenir.
Te finalizare con tres grandes dichos:
Cada loco con su tema.
Cada quien por su camino.
Y el que más me gusta el zapatero a sus zapatos.
-
Interiores espacio exposición de muebles
Mi prefe es el deloco, aunque no sé porque se me metido hace tiempo cada loco con su moto y así lo he seguido utilizando.
-
Interiores espacio exposición de muebles
Artefactos? Nunca escuche ese término, disculpen que volví a uno de los primeros mensajes de este tema, pero estoy muy interesado en saber a que se refieren, puede tener algo que ver con bajar el cálculo de irradiance para acelerar el render?
-
Interiores espacio exposición de muebles
De vez en cuando no viene de más buscar en el foro.
-
1 Archivos adjunto(s)
Interiores espacio exposición de muebles
Cita:
Artefactos? Nunca escuche ese término, disculpen que volví a uno de los primeros mensajes de este tema, pero estoy muy interesado en saber a que se refieren.
Hernanjl:
Artefactos = artefactos.
Como una imagen vale más que mil palabras, adjunto una ilustrando el tema.
Tonneti:
El render a grandes rasgos lo veo bastante bien, para iniciarte en Vray.
Sugerencias:
-Mejora el modelado de las barandas, sobre todo los encuentros.
Bájale la saturación al mapa del marco de las puertas, porque parece incandescente en ciertas imágenes, o click derecho sobre ellos > Vray properties > recieve GI, y le bajas el valor.
Cuidado con los vidrios de la claraboya superior, no se nota que tienen salvo en la última imagen. Métele algún mapa de reflexión, o hacerlos de un color quizá más verdoso o azulado.
Chequea el tema de la iluminación. Por el color del cielo que estás poniendo, yo haría mucho más intensa la luz direct que estas usando, y endurecería ls sombras (tocando el shadow size en los parámetros de la direct). Intenta bajar el valor del GI, para generar zonas de contraste que pueden llegar a resultar interesantes. También fíjate (ahora arquitectónicamente hablando) que esto te puede llegar a servir para generar un juego de luces y sombras que se proyectan en las paredes y por ahí ya tengas que empezar a darle una intencionalidad a la entrada del sol, si todavía no se la diste. Suerte.
-- IMÁGENES ADJUNTAS --
https://foro3d.com/attachment.php?attachmentid=16517
-
Interiores espacio exposición de muebles
Me apunto cada punto tuyo, sobre todo los de iluminación y estética, ya que una vez entregado, el modelado de las barandillas, por ejemplo, no tengan más jugo que sacarle (aunque los encuentros están fatal), incluso la claraboya central, ((no tiene cristal, no están modelados.)), voy a probar esas cosas que me cuentas y a ver si cuelgo algo. Muchas gracias por tan definidas críticas. Un saludo.
-
Interiores espacio exposición de muebles
Pues a me parecía genial la discusión sobre arquitectura, tiro más hacia el lado de Tonneti con eso de romprer la reglas. Hace tiempo, un año o dos, hice un trabajo de Peter einsenman, supuestamente es un famoso arquitecto, creo que más teórico que arquitecto, pero bueno, pues no vi muchas rampas a 8% ni nada parecido, de funcionalidad no sé yo con andaría eso, eso sí, en cuanto al espacio y las formas un genio (a mi gusto). Saludos y no os cortéis.
Por cierto, me gusta mucho Tonneti.
-
Interiores espacio exposición de muebles
Vaya jua. ¿Peter einsenmann? Famoso arquitecto? Es uno de los más importantes arquitectos de nuestro tiempo, junto con gente como Calatrava, siza, kolhas, y hasta me animaría a decir como Tadao ando. Como Gehry nada, quién lo quiere a ese.
¿Podrías pasarme algo de lo que hiciste para él? Me muero de ganas de ver.
-
Interiores espacio exposición de muebles
Peter einsenmann, mira lo que te encontrarás en este foro, groso.
-
Interiores espacio exposición de muebles
Poca atención puedo poner a alguien que me mete a Calatrava en esa lista. Yo creía que Calatrava solo gustaba a 10 o 20 personas en el mundo.
Por otra parte no mencionar a Moneo, de la sota, y decir que Gehry no, vaya, ¿cómo se nota que hablamos de gustos.
-
Interiores espacio exposición de muebles
Por supuesto, gustos son gustos. A mí personalmente no me gusta la arquitectura de Gehry. Vi lo que hace, sus obras, vi documentales, seguí de cerca la construcción del experience music Project profesional una serie que daban en el Discovery Channel, y así y todo me parece un planteo interesante y entiendo lo que el quiere manifestar mediante su arquitectura (porque el lo explica siempre), pero me parece (a mí) que se puede hacer muchísimo más con menos cosas (te suena menos es más, seguro que si) por eso el chiste de Gehry, porque siempre fue un arquitecto polémico y a mucha gente no le gusta, como pasa con zaha hadid, quien, no obstante, ganó el pritzker este año. Zaha me encanta.
Por eso repito: gustos son gustos.
Por otro lado, Calatrava me parece fascinante, fascinante. Aquí en Buenos Aires hizo el puente de la mujer, y me parece una obra sublime por lo simple, estética y emblemática de su arquitectura (a su manera, pero a la vez igual que Gehry). El color blanco, los materiales sacados de la naturaleza, el hormigón, el metal, sus maravillosos sistemas estructurales inspirados en los esqueletos de los seres vivos, en fin. Saludos.
-
Interiores espacio exposición de muebles
Less is more, mies, este si fu un gran maestro sí, y sin estudiar la Carrera. Este año zaha? Este año lo gano thom mayne, 2005 digo. Vaya zaha, otra petarda.
Para gustos los colores, está claro.
-
Interiores espacio exposición de muebles
Apa Tonneti. Si estudias en Donosti, entonces somos colegas de sufrimiento. Bueno, yo en breve espero ser ex-sufridor. De 3d ni zorra (estaba aprendiendo leyendo este foro), así que, te voy a hacer una crítica al diseño. Me gusta la idea, al fin y al cabo, las ideas son personales y poco criticables, tan solo se puede criticar la ejecución de estas. Y en tu caso no pongo ningún, pero a la coherencia de tus intenciones iniciales y el resultado final, veo correspondencia. Bien, pero me pregunto si no habrás sacrificado algunas cosas. Que pasa en esos espacios sub-rampa? Has decidido dejarlos en vacío, pero es ese vacío útil? En algunos casos sí, pero porque no lo has macizado en los casos en que no son de utilidad?
Y por último (esto es un detalle de diseño), porque has acabado la sala esa bajo-rampa de esa forma tan extraña, dejando una esquina bajo-rampa inservible y coge-polvo? Insisto es un detalle, pero yo le daría más vueltas al tema en un futuro.
Ánimo, ta sorte on eskolan.
-
4 Archivos adjunto(s)
Interiores espacio exposición de muebles
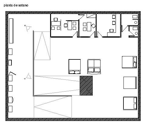
Que suerte que pronto seas un ex. Vaya, con lo de espacios subrampa te refieres a los espacios debajo de las rampas o antes de lasí te enseño aquí como esta distribuido el espacio, hay 4 subespacios, para 4 tipos de muebles. Las misma srampas iban a tener muebles en las esquinas, pero me pareció demasiado recargado y no los puse, aunque el tema de continuidad hubiera sido más notable aun.
La esquina esa que me comentas, sí, esa está un poco marginada, con poca luz también, pero no encontraba otra forma de conseguirlo, al principio la rampa que va abajo iba pegada en un lateral, pero cambiaba todo mucho (las rampas de subida sobre todo).
Bo eskerrique asko ta zorte on Zuri ere.
-- IMÁGENES ADJUNTAS --
https://foro3d.com/attachment.php?attachmentid=16758
https://foro3d.com/attachment.php?attachmentid=16759
https://foro3d.com/attachment.php?attachmentid=16760
https://foro3d.com/attachment.php?attachmentid=16761
-
Interiores espacio exposición de muebles
Vaya, mira, ahora que veo los planos, entiendo mejor esos espacios bajo-rampa, teniendo en cuenta que los usas como expositores.
Pero esto me lleva a otra crítica (siempre constructiva) que sería la falta de luz en toda la planta de abajo, concretamente en todo el perímetro que tiene la rampa o el piso de arriba encima. No te parece a ti que esos lugares deberían ser iluminados con luz natural? Quizá si las rampas superiores y el forjado no tocasen las paredes más que en lo necesario estructuralmente, quizás podrías bañar las paredes con luz genital.
No sé, por otro lado, en los planos tienes un pequeño fallo de representación que al principio me confundía. La rampa que baja hasta abajo, en el plano de la planta de abajo, acaba contra una barandilla, por lo que parece que está en otra altura.
Por último, lo del volumen de las oficinas, yo lo hubiera rematado evitando esa esquina que te comentaba, alargando las paredes hasta que intersequen con la rampa y, además no hubiera desdoblado el forjado como si fueran dos. Eso queda un poco raro.
En fin, por lo demás me parece buena idea como ya te he dicho antes. Para que asignatura es, proyectos? Simple curiosisdad.
Ondo izan.
-
Interiores espacio exposición de muebles
Aupa. Empiezo por atrás, sí, proyectos. En lo referente a la luz te doy toda la razón, y sí, probablemente hubiera sido una buena solución la que dices de bañar por las esquinas.
Vaya, lo del fallo de representación de la barandilla, ahora me entero, gracias, aunque sea ya muy tarde.
No entiendo muy bien lo de evitar las esquinas alargando el volumen? Por lo demás, el desdoblamiento ese.si, no lo hice por ninguna razón en concreto.
Gero arte.